
技术参数
型 号:ICS-***/**
皮带宽度:B500~B1000
给料能力:0.1~500t/h
给料精度:±0.5%
称重检测:单传感器、双传感器
调节范围:1:5
调速形式:变频调速
工作方式:连续工作
传动形式:高效轴装减速机
行业定制:
1.驱动辊包胶。
2.尾辊镂空。
3.塑料托辊。
4.防腐油漆。
5.可选配防尘罩、密封罩。
6.引导料仓设计。
7.设置皮带内外清扫器、纠偏装置。
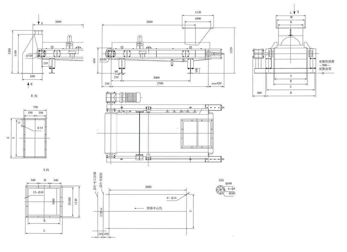
尺寸表:
| 规格 | 滚筒中心距(mm) | 给料机总长(mm) | 皮带宽度(mm) | |||
|---|---|---|---|---|---|---|
| 500 | 650 | 800 | 1000 | |||
| 滚筒直径 D=φ190 | 1700 | 2220 | 1170 | 1320 | 1520 | 1720 |
| 2000 | 2520 | 1170 | 1320 | 1520 | 1720 | |
| 2000 | 2520 | 1170 | 1320 | 1520 | 1720 | |
| 2000 | 2520 | 1170 | 1320 | 1520 | 1720 | |
| 2000 | 2520 | 1170 | 1320 | 1520 | 1720 | |
| 2000 | 2520 | 1170 | 1320 | 1520 | 1720 | |
| 2000 | 2520 | 1170 | 1320 | 1520 | 1720 | |
| 型号 | ICS-500/20 | ICS-600/20 | ICS-800/20 | ICS-1000/20 |
| 皮带宽度A | 500 | 600 | 800 | 1000 |
| B | 540 | 690 | 840 | 1040 |
| C | 780 | 930 | 1080 | 1280 |
| D | 860 | 1010 | 1160 | 1360 |
| E | 300 | 350 | 500 | 700 |
| F | 400 | 450 | 600 | 800 |
| G | 700 | 850 | 1000 | 1200 |
| 功率 | 0.75kw/1.1kw | 0.75kw/1.1kw | 0.75kw/1.1kw | 1.5kw |
